Sie haben Fragen?
02174 – 679 579

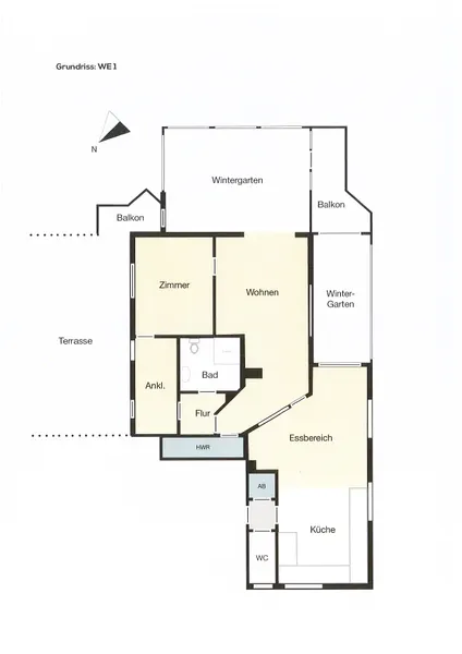
Wohnung zur Miete 51766 Engelskirchen

Helle, Barrierefreie 5 Zimmer Wohnung

Bilder anzeigen (27)
  • 1.850 €
  • Objekt-Nr.: 66334-4332#btM58l
  • 5 Zimmer
  • 2 Schlafzimmer
  • 1 Badezimmer
Teilen auf:

*Pflichtfelder Ihre Anfrage

Neueste Immobilien

51381 Leverkusen - PattscheidNEU: Modernisiertes Reihenhaus für die junge Familie mit Garage in sehr ruhiger Lage

  • 4
  • 3
Wohnfl.: 113 m²

Kaufpreis
398.000 €

58332 Schwelm - ZentrumMitten im Geschehen: Attraktive Mietwohnung mit zwei Zimmern in der Schwelmer Fußgängerzone

  • 2
  • 1
Wohnfl.: 78 m²

Miete zzgl. NK
625 €

Gerne für Sie da!

Sprechen Sie uns an!
Tel. 02174 – 679 579

Marktexperten
Immobilien sind unsere Kernkompetenz. Sprechen Sie uns an!
Rundum-Service
Erhalten Sie aktuelle Infos und Ratgeber rund um die Immobilie.
Suchauftrag
Wir unterstützen Sie persönlich und zuverlässig bei der Suche nach Ihrer Traumimmobilie.
Kooperationen

Erfahren Sie hier mehr über unsere Partner.